Котел КВм 1.5 с ТЛПХ в Астане

Котел КВм-1.5 с ТЛПХ
Котел КВм 1.5 с ТЛПХ
Чертеж котла КВм 1.5 с ТЛПХ
Котел КВм 1.5 с ТЛПХ чертеж
Котел КВм-1.5 с механической топкой ТЛПХ
Котел КВм 1.5 с механической топкой ТЛПХ
Промышленный котел КВм-1.5 с ТЛПХ
Промышленный котел КВм 1.5 с ТЛПХ
Производство котлов КВм-1.5 с топкой ТЛПХ
Производство котлов КВм 1.5 с топкой ТЛПХ
Механическая топка ТЛПХ котла КВм 1.5
Механическая топка ТЛПХ котла КВм-1.5
Производство топок ТЛПХ котла КВм-1.5
Производство топок ТЛПХ котла КВм 1.5
Изготовление топки ТЛПХ котла КВм-1.5
Изготовление топки ТЛПХ котла КВм 1.5
Котел КВм-1.5 с ТЛПХ
Чертеж котла КВм 1.5 с ТЛПХ
Котел КВм-1.5 с механической топкой ТЛПХ
Промышленный котел КВм-1.5 с ТЛПХ
Производство котлов КВм-1.5 с топкой ТЛПХ
Механическая топка ТЛПХ котла КВм 1.5
Производство топок ТЛПХ котла КВм-1.5
Изготовление топки ТЛПХ котла КВм-1.5
Цена
37 524 000 ₸
От 37 524 000 ₸ с доставкой до г.
  • Модель с механической топкой прямого хода с ленточным колосниковым полотном ТЛПХ
  • Эффективная работа на каменном и буром угле повышенной влажности
  • Полностью автоматизированная работа – подача и равномерное распределение топлива, механическое золоудаление
  • Надежная работа котла обеспечивается изготовлением трубной системы из трубы сталь 10, 20 повышенной прочности
  • Удобные люки для очистки поверхностей нагрева

Технические характеристики котла КВм 1.5 с ТЛПХ

МаркаКотел КВм 1.5 с ТЛПХ
ВидВодогрейный
Тип отопительного котлаТвердотопливный
БрендHEATEXPERT
ТипКотел КВм
Вид топкиМеханическая, ТЛПХ
Марка топкиТЛПХ-0,8/2,5
Максимальная тепловая мощность1.5 МВт
Максимальная тепловая мощность1500 кВт
Максимальная тепловая мощность1.29 Гкал
Диапазон регулирования мощности50-100 %
ТопливоТвердое, Уголь
Низшая теплота сгорания проектного топлива5230 кКал/кг
КПД котла на УГЛЕ, не менее80 %
Расход УГЛЯ среднечасовой за отопительный сезон164 кг/ч
Расход УГЛЯ при максимальной нагрузке котла287 кг/ч
Расход условного топлива214 кг/ч
Минимальная температура воды на входе в котел55 °С
Максимальная температура воды на выходе из котла115 °С
Давление воды, не более0.3-0.6 (3-6) МПа (кгс/см²)
Номинальный расход теплоносителя52 м³/ч
Расход теплоносителя через котел min-max39-64 м³/ч
Гидравлическое сопротивление при номинальном расходене более 0.07 (0.7) МПа (кгс/см²)
Аэродинамическое сопротивление230 (23) Па (мм. вод. ст.)
Разряжение в топочной камере20-40 (2-4) Па (мм. вод. ст.)
Объем уходящих газов6450 м³/ч
Температура уходящих газов220 °С
ТягаУравновешенная
Водяной объем котла630 л
Объем топочной камеры3.9 м³
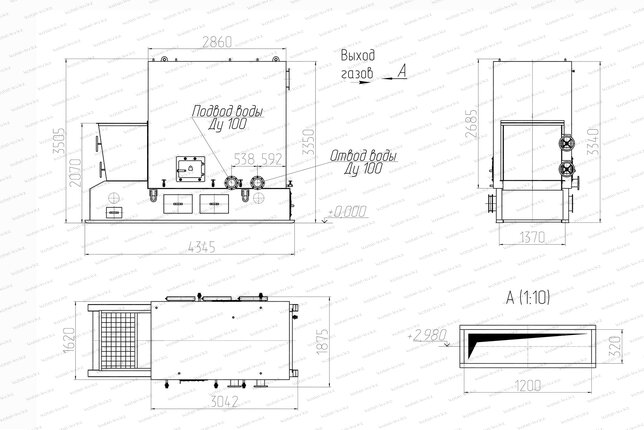
Размер топочной камеры, длина*ширина*высота1785х1300х1700 мм
Активная площадь решетки горения1.6 м²
Присоединительные размеры по водяному тракту125 Ду
Присоединительные размеры газохода уходящих газов, ширина*высота / сечение600х300 / 0.18 мм/м²
Габаритные размеры блока, длина*ширина*высота3150х1770х1900 мм
Габаритные размеры установки, длина*ширина*высота4800х3260х2700
Масса9700 кг
Конструкция котлаВодотрубная
Количество контуровОдноконтурный
РазмещениеНапольный
Тип камеры сгоранияОткрытый
УправлениеЭлектронное
Принцип работы твердотопливного котлаКлассический
ЭнергонезависимыйНет
Тип питанияТрехфазное
Встроенный циркуляционный насосНет
Встроенный расширительный бакНет
ЭнергоэффективностьВысокая
Отапливаемая площадьот 12500 до 16500 м²
Отапливаемый объемот 37500 до 49300 м³

Механический котел КВм 1.5 с ТЛПХ в Астане

Водогрейный механический котел КВм с топкой ТЛПХ мощностью 1.5 МВт работает на каменном и буром угле, используется для отопления и горячего водоснабжения жилых и административных зданий, промышленных помещений, производственных предприятий. Температура нагрева воды 115 °С, рабочее давление 0,3-0,6 МПа. Котел предназначен для работы в механизированных котельных, оборудованных системами топливоподачи и золошлакоудаления.

Устройство котла КВм 1.5 МВт с ТЛПХ

Промышленный отопительный котел 1,5 МВт с ТЛПХ состоит из котельного блока и топки с ленточным колосниковым полотном прямого хода.

Котельный блок изготавливается из труб, обшитых теплоизоляцией и декоративными стальными листами. Переднюю часть котельного блока занимает топочное пространство, в задней части располагаются конвективные пакеты. Для очистки конвективных пакетов в обшивке котла имеется люк. Котельный блок устанавливается на топку ТЛПХ.

Топочная часть выполнена газоплотной для исключения теплопотерь и присосов холодного воздуха.

Механическая топка ТЛПХ изготавливается с ленточным колосниковым полотном. Колосниковое полотно набирается из трех типов колосников. В передней части топки крепится угольный бункер. Под колосниками находятся воздушные коробы для распределения потока воздуха. Условно, топка делится на три зоны – сушки, горения, дожига и охлаждения. Для каждой зоны необходимо различное количество воздуха, поэтому происходит позонная подача воздушного потока в колосниковое пространство. Количество воздуха регулируется индивидуальным клапаном. Это позволяет эффективно сжигать уголь, чтобы в зоне охлаждения находился только шлак.

Конвективная часть трубного водонагревательного котла 1.5 МВт с ТЛПХ изготовлена в виде регистров, вставленных друг в друга в шахматном порядке. Это позволяет получить обширную нагревательную поверхность и максимальный коэффициент теплопередачи. Горячие дымовые газы охлаждаются на выходе до 200-180 °С.

Принцип работы котла 1,5 с ТЛПХ

Производственный тепловой мехкотел КВм 1,5 с колосниковой ленточной движущейся решеткой прямого хода устанавливается в механизированной котельной с транспортерами топливоподачи и шлакозолоудаления. Транспортер топливоподачи отправляет уголь в бункер топки, откуда он самотеком поступает на движущуюся решетку, где происходит его горение. По мере продвижения по решетке топливо сгорает, а зола и шлак сбрасываются в шлаковый канал и транспортируются в отвал.

Гидравлическая схема котла

Высокие скорости водного потока создают турбулентность, предотвращающую отложение солей и образование накипи. Это позволяет использовать воду с минимальными требованиями к качеству и избегать монтажа дополнительных установок по очистке воды. Коллекторы автономного котла 1 5 с ТЛПХ для отопления снабжены многочисленными перегородками, распределяющими поток воды таким образом, что возникновение и образование застойных зон отсутствует и перегрев исключен.

Комплект поставки

Цена на механический котел 1.5 МВт с топкой ТЛПХ включает базовую комплектацию. В состав базовой комплектации входит: котельный блок, топка, вентилятор поддува, затворы, предохранительные клапаны, вентили, манометры, термометры, трехходовые краны.

Дополнительная комплектация

  • автоматика – обеспечивает управление и безопасность котла;
  • дымосос – создает разряжение в котле и исключает попадание дыма в помещение;
  • золоуловитель – применяется для улавливания золы из дымовых газов;
  • циклон - применяется для улавливания золы из дымовых газов;( от 3.0 мвт)
  • циркуляционный насос - обеспечивает циркуляцию воды в котлоагрегате;
  • подпиточный насос – позволяет пополнять объем теплоносителя в контуре.

Купить котел КВм 1.5 с ТЛПХ

Для того чтобы купить котел КВм 1.5 с ТЛПХ в Астане вы можете сделать заявку по телефону +7-7172-69-59-73, либо оформить заявку онлайн. Менеджеры дадут консультацию по подбору вспомогательного оборудования для выбранных вами моделей и рассчитают стоимость доставки. Транспортирование котлоагрегата и вспомогательного оборудования до объекта осуществляется автомобильным транспортом.

Комплект поставки котла КВм 1.5 с ТЛПХ

ТЛПХ-0.8/3.32 топка
Топка ТЛП 0,8х3,32
1 штука
Вентилятор
Вентилятор 2,5 с дв. 4/3000
1 штука
Затвор Ду 125
Затвор Ду 125
2 штуки
Клапан предохранительный Ду 50
Клапан Ду 50
1 штука
Клапан обратный
Клапан обратный
1 штука
Манометр МП 160
Манометр МП 160
2 штуки
Кран трехходовой ДУ 15
Кран Ду 15
2 штуки
Термометр ТТЖО
Термометр ТТЖО
2 штуки
Оправа термометра ОПТ
Оправа ОПТ
2 штуки
Вентиль Ду 20
Вентиль Ду 20
5 штук
Вентиль Ду 25
Вентиль Ду 25
5 штук

Вспомогательное оборудование для работы котла КВм 1.5 с ТЛПХ

Автоматика механической топки ТШПМ
Цена 1 774 440 тг.
Дымосос ДН 6.3
Цена 644 904 тг.
Золоуловитель ЗУ 1.6
Цена 432 480 тг.
Дымосос ДН 8
Цена 1 380 756 тг.
Газоход котла
Цена по запросу
Насос К консольный
К 80-65-160
Цена 455 376 тг.
Насос К консольный
К 65-50-125
Цена 336 444 тг.
Насос TD
Насос TD65-34G2 (7.5 кВт)
Цена 1 238 292 тг.
Насос TD
Насос TD80-29G2 (7.5 кВт)
Цена 1 294 896 тг.
Насос CHL
Насос CHL4-40 (0.75 кВт)
Цена 352 344 тг.

Аналоги котла КВм 1.5 с ТЛПХ

Котел 1.5 МВт с топкой ЗП РПК
Котел КВм 1.5 с ЗП РПК
Вид топкиМеханическая, ЗП РПК
Максимальная тепловая мощность, МВт1.5
ТопливоТвердое, Уголь
Отапливаемая площадь, м²от 12500 до 16500
Цена 10 360 758 тг.
Котел КВм 1.5 МВт с ТШПМ
Котел КВм 1.5 с ТШПМ
Вид топкиМеханическая, ТШПМ
Максимальная тепловая мощность, МВт1.5
ТопливоТвердое, Уголь
Отапливаемая площадь, м²от 12500 до 16500
Цена 10 640 280 тг.
Котел КВм 1.5 МВт с топкой РПК
Котел КВм 1.5 МВт с РПК
Вид топкиМеханическая, РПК
Максимальная тепловая мощность, МВт1.5
ТопливоТвердое, Уголь
Отапливаемая площадь, м²от 12500 до 16500
Цена 8 734 824 тг.
Котел КВр-1.5 К
Котел КВр 1.5 МВт
Вид топкиРучная, Колосники
Максимальная тепловая мощность, МВт1.5
ТопливоТвердое, Уголь
Отапливаемая площадь, м²от 12500 до 16500
Цена 6 245 520 тг.
Котел КВм-1.63 с ТЛПХ
Котел КВм 1.63 с ТЛПХ
Вид топкиМеханическая, ТЛПХ
Максимальная тепловая мощность, МВт1.63
ТопливоТвердое, Уголь
Отапливаемая площадь, м²от 13600 до 17900
Цена по запросу

Сертификат и качество котла КВм 1.5 с ТЛПХ

Сертификат на водогрейные котлы на твердом и жидком топливе
Сертификат на водогрейные котлы на твердом топливе

Собственное производство

Котельный завод производит
  • Паровые котлы от 300 кг до 2.5 тонны пара в час
  • Промышленные водогрейные котлы от 150 КВт до 4 МВт на всех видах топлива
  • Механические топки ТШПМ, шурующая планка и ТЛПХ, ленточное полотно прямого хода
  • Циклоны для очистки воздуха и дымовых газов для производств и промышленных отраслей
  • Транспортеры и системы топливоподачи и шлакоудаления
Подробнее о производстве
Собственное производство
Смотреть видео
с производства