Дровяной котел 900 кВт с большой топкой в Астане

Котел дровяной 900 кВт с большой топкой
Дровяной котел 900 кВт с большой топкой
Чертеж дровяного котла 900 кВт с большой топкой с колосниками
Дровяной котел 900 кВт с большой топкой с колосниками чертеж
Чертеж дровяного котла 900 кВт с большой топкой ОУР
Дровяной котел 900 кВт с большой топкой ОУР чертеж
Котел дровяной 900 кВт с длинной топкой
Дровяной котел 900 кВт с длинной топкой
Котел 900 кВт на дровах с большой топкой
Котел на дровах 900 кВт с большой топкой
Котел 900 кВт на дровах с длинной топкой
Котел на дровах 900 кВт с длинной топкой
Дровяной котел 900 кВт с большой топкой водогрейный
Водогрейный дровяной котел 900 кВт с большой топкой
Дровяной котел 900 кВт с большой топкой промышленный
Промышленный дровяной котел 900 кВт с большой топкой
Дровяной котел 900 кВт с большой топкой отопительный
Отопительный дровяной котел 900 кВт с большой топкой
Топка большая
Большая топка
Дровяной котел 900 кВт с большой топкой твердотопливный
Твердотопливный дровяной котел 900 кВт с большой топкой
Топка котла 900 кВт на дровах
Топка котла на дровах 900 кВт
Котел дровяной 900 кВт с большой топкой
Чертеж дровяного котла 900 кВт с большой топкой с колосниками
Чертеж дровяного котла 900 кВт с большой топкой ОУР
Котел дровяной 900 кВт с длинной топкой
Котел 900 кВт на дровах с большой топкой
Котел 900 кВт на дровах с длинной топкой
Дровяной котел 900 кВт с большой топкой водогрейный
Дровяной котел 900 кВт с большой топкой промышленный
Дровяной котел 900 кВт с большой топкой отопительный
Топка большая
Дровяной котел 900 кВт с большой топкой твердотопливный
Топка котла 900 кВт на дровах
Цена
5 799 200 ₸
От 5 799 200 ₸ с доставкой до г.
Логотип WhatsApp Связаться
по WhatsApp
  • Котел для работы на крупных кусковых отходах деревопереработки – дровах, досках, поддонах и прочее
  • Габаритная топка длиной 2 метра
  • Эффективное сжигание топлива
  • Быстрый выход на мощность

Технические характеристики

МаркаДровяной котел 900 кВт с большой топкой
ВидВодогрейный
Тип отопительного котлаТвердотопливный
БрендHEATEXPERT
ТипКотел КВД
Вид топкиРучная, Колосники, ОУР
Максимальная тепловая мощность0.9 МВт
Максимальная тепловая мощность900 кВт
Максимальная тепловая мощность0.77 Гкал
Диапазон регулирования мощности50-100 %
ТопливоТвердое, Дрова
Низшая теплота сгорания проектного топлива2440 кКал/кг
КПД котла на ДРОВАХ, не меннее80 %
Расход ДРОВ среднечасовой за отопительный сезон227.4 кг/ч
Расход ДРОВ при максимальной нагрузке котла398 кг/ч
Расход условного топлива139 кг/ч
Минимальная температура воды на входе в котел55 °С
Максимальная температура воды на выходе из котла115 °С
Давление воды, не более0.3-0.6 (3-6) МПа (кгс/см²)
Номинальный расход теплоносителя31 м³/ч
Расход теплоносителя через котел min-max23-39 м³/ч
Гидравлическое сопротивление при номинальном расходене более 0.07 (0.7) МПа (кгс/см²)
Аэродинамическое сопротивление120 (12) Па (мм. вод. ст.)
Разряжение в топочной камере20-40 (2-4) Па (мм. вод. ст.)
Объем уходящих газов3650 м³/ч
Температура уходящих газов220 °С
ТягаУравновешенная
Водяной объем котла410 л
Объем топочной камеры2.6 м³
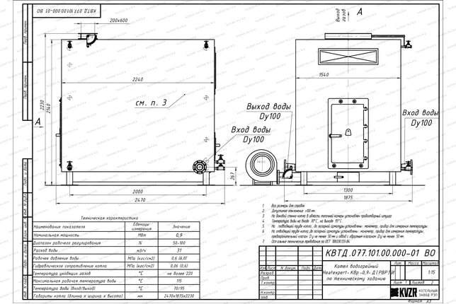
Размер топочной камеры, длина*ширина*высота2000х1300х1000 мм
Активная площадь решетки горения2.6 м²
Присоединительные размеры по водяному тракту100 Ду
Присоединительные размеры газохода уходящих газов, ширина*высота / сечение600х300 / 0.18 мм/м²
Габаритные размеры котла, длина*ширина*высота2470х1875х2230 мм
Масса2050 кг
Конструкция котлаВодотрубная
Количество контуровОдноконтурный
РазмещениеНапольный
Тип камеры сгоранияОткрытый
УправлениеЭлектронное
Принцип работы твердотопливного котлаКлассический
ЭнергонезависимыйНет
Тип питанияТрехфазное
Встроенный циркуляционный насосНет
Встроенный расширительный бакНет
ЭнергоэффективностьВысокая
Отапливаемая площадьот 6900 до 9900 м²
Отапливаемый объемот 20500 до 29500 м³
Размеры корпуса котла, длина*ширина*высота мм

Котел на дровах 900 кВт с большой топкой в Астане

Промышленный отопительный котел на дровах с большой топкой мощностью 900 кВт нагревает воду температурой 115 °С, применяется для отопления и горячего водоснабжения маленьких и больших помещений и зданий. Используется в котельных с ручными топками.

Водогрейный котел с большой топкой 900 подходит для сжигания дров, поддонов, досок и других древесных кусковых отходов. Большой объем топочной камеры и и ее длина 2 метра позволяют работать с топливом без предварительной подготовки.

Конструкция дровяного котла 900 кВт с большой топкой

Стальной водонагревательный дровяной котел 900 кВт с длинной топкой - напольный, горизонтальный с ручной топкой. Передняя нижняя часть теплоагрегата – это чугунная колосниковая топка. В задней части трубной системы установлены конвективные пакеты. Наружная изоляция выполняется стальными листами с огнестойкими плитами. Для очистки конвективной части имеется люк. На фронтовой плите устанавливаются две дверки, расположенные одна над другой или одна большая.

Топочная часть

Топочная камера нагревательного котла на дровах 900 кВт с большой топкой выполнена из стальных водоохлаждаемых панелей для предотвращения деформации конструкции. Газоплотное исполнение топки исключает присосы холодного воздуха и выбивание горячих газов за пределы котла, повышая его КПД. В дополнительной поворотной камере, установленной на выходе из топки перед конвективным пучком происходит догорание легких и мелких топливных древесных частиц.

Колосниковая топка

Чугунные колосники собираются в решетку для поддержания слоя топлива, подачи воздуха в топку для горения и отделения зольника от топливной камеры. Отверстия в колосниках необходимы для удаления золы. Чтобы отверстия не забивались, снизу они расширяются. Дрова забрасываются на решетку через верхнюю дверцу. Верхняя загрузка способствует равномерному заполнению топочной камеры и контролю процесса горения. Под колосниками находится зольный короб с дверкой для чистки.

Конвективная часть

Конвективная поверхность производственного водотрубного дровяного котла 900 кВт с большой топкой выполнена из плотных регистров, вставленных друг в друга в шахматном порядке. Это обеспечивает значительную нагревательную площадь и высокий коэффициент передачи тепла. В связи с этим горячие дымовые газы подвергаются охлаждению до 180-200 °С.

Гидравлическая схема котла

Конструкция твердотопливного дровяного котла 900 кВт с длинной топкой для отопления предполагает минимальные требования к водоподготовке. Скорость движения воды в трубах вызывает турбулизацию водного потока, что препятствует отложению солей и образованию накипи на стенках труб. Коллекторы котла снабжены многочисленными перегородками, которые не допускают образование застойных зон, возникновение теплового напряжения в трубах и перегрев.

Купить котел на дровах 900 кВт с большой топкой

Для того, что бы купить дровяной котел 900 кВт с большой топкой в Астане вы можете сделать заявку по телефону +7-7172-69-59-73, либо оформить заявку онлайн. Менеджеры дадут консультацию по подбору вспомогательного оборудования для выбранных вами моделей и рассчитают стоимость доставки. Транспортирование котлоагрегата и вспомогательного оборудования до объекта осуществляется автомобильным транспортом.

Комплект поставки

Вентилятор
Вентилятор 2 с дв. 2,2/3000
1 штука
Затвор Ду 100
Затвор Ду 100
2 штуки
Колосники котлов
Колосник 1000x220
8 штук
Клапан предохранительный Ду 50
Клапан Ду 50
1 штука
Клапан обратный
Клапан обратный
1 штука
Манометр МП 160
Манометр МП 160
2 штуки
Кран трехходовой ДУ 15
Кран Ду 15
2 штуки
Термометр ТТЖО
Термометр ТТЖО
2 штуки
Оправа термометра ОПТ
Оправа ОПТ
2 штуки
Вентиль Ду 15
Вентиль Ду 15
2 штуки
Вентиль Ду 20
Вентиль Ду 20
3 штуки

Дополнительно потребуется

Насос К консольный
К 80-65-160
Цена 497 545 тг.
Насос К консольный
К 50-32-125
Цена 313 025 тг.
Насос TD
Насос TD40-36G2 (5.5 кВт)
Цена 1 447 164 тг.
Насос TD
Насос TD80-29G2 (7.5 кВт)
Цена 1 530 198 тг.
Насос CHL
Насос CHL4-40 (0.75 кВт)
Цена 378 925 тг.
Дымосос ДН 6.3
Цена 642 525 тг.
Золоуловитель ЗУ 0.8
Цена 336 090 тг.
Дымосос ДН 8
Цена 1 413 555 тг.

Похожая продукция

Сертификаты товара

Сертификат на водогрейные котлы на твердом и жидком топливе
Сертификат на водогрейные котлы на твердом топливе

Собственное производство

Котельный завод производит
  • Паровые котлы от 300 кг до 2.5 тонны пара в час
  • Промышленные водогрейные котлы от 150 КВт до 4 МВт на всех видах топлива
  • Механические топки ТШПМ, шурующая планка и ТЛПХ, ленточное полотно прямого хода
  • Циклоны для очистки воздуха и дымовых газов для производств и промышленных отраслей
  • Транспортеры и системы топливоподачи и шлакоудаления
Подробнее о производстве
Собственное производство
Смотреть видео
с производства